無料査定はこちら 掲載物件はこちら
【売地】売地
物件画像
  • サブ画像1
  • サブ画像2
  • サブ画像3

ご相談・お問い合わせはこちら

お電話095-842-5666 お問い合わせフォームはこちら

物件概要

価格
1,970万円
タイプ
【売地】売地 / 2階建
間取り
-
築年数
1975/1
敷地面積
282.84㎡
所在地
長崎県 長崎市 小江原2丁目
交通
バス(小江原アパート 徒歩1分)
前のページに戻る

物件詳細

建物名(物件名)
恒川邸
部屋番号/区画番号
-
価格
1,970万円
敷金
-
管理費
-
修繕積立費
-
駐車場
-
借地料
-
敷地面積
282.84㎡
土地面積計測方式
公簿
土地権利
所有権
地目
宅地
地勢
平坦
セットバック
-
接道1
西側 幅員6.3mの公道に接する(位置指定道路)
接道2
南側 幅員4mの公道に接する(位置指定道路)
建物構造
木造 地上2階
築年月
1975/1
専有面積
-
建物面積計測方式
壁芯
延床面積
214.77㎡
バルコニー面積
-
都市計画
市街化区域
用途地域
第一種低層住居専用地域
建ぺい率
60%
容積率
100%
表面利回り
-
現行利回り
-
通学校区
小江原小学校
小江原中学校
現況
空家
引渡/入居時期
即時
取引態様
専任
物件公開日
2017年7月3日
次回更新予定日
2026年1月3日

設備・条件

その他:売主の瑕疵担保責任免責/戸建で利用する場合はリフォーム必須

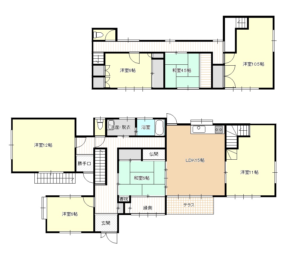
この物件、長崎市北部の以前からある大型団地群の一つ、小江原第二団地内にあります。

建物は昭和感漂う造り。
増築を2回行い広さ214㎡(約65坪)の7LDKとなりました。
個人的にはこの家を再利用したい気分ですが、この家を利用するとかなりのリフォーム代がかかると思い、売地として紹介する事としました。

この物件の良いポイントは2つ!
●南側に広く面する南西角地
●小江原小学校まで徒歩5分

敷地面積282㎡(約85坪)の広さ。2宅地分の広さです。
南向き宅地はありますがこの物件およそ20m!敷地が20mも南に面しているのです!!
つまりどの部屋も陽当りが良い間取となるはずです

もうひとつのポイントの小学校までの距離。
バスや電車を使っての通学ではなく徒歩。
団地内に小学校があるという事は(一概には言えませんが)車の速度は一般道より遅い。そもそも団地内でスピードを上げて走る人はそういないはず。
この物件と小学校の間には交番もありますし・・・

何を言いたいかというと、通学までの距離や時間が短いという事です!
交番近くなので交通事故や事件の確率が低いと思いませんか?

何となく安心安全な気がしませんか?

一体どんな人がこの物件を購入し、そしてどの様に活用するのかが今から楽しみです。
きっと心温かい人かな?何となく

前のページに戻る

ご質問・ご相談、
お気軽にお問い合わせください

無料LINEで査定する

お電話でのお問い合わせはこちら

955-842-5666

営業時間 9:00-18:00 / 定休日 日・祝日

Fudousan Plugin Ver.6.8.0