売買物件を探す
センスある施主が建てる土地
物件概要
- 価格
- 2,350万円
- タイプ
- 【売地】売地 / -
- 間取り
- -
- 築年数
- -
- 敷地面積
- 125.75㎡
- 所在地
- 長崎県 長崎市 八幡町
- 交通
- 長崎電気軌道3系統 公会堂前 徒歩7分
- YouTube
- -
物件詳細
- 建物名(物件名)
- -
- 部屋番号/区画番号
- -
- 価格
- 2,350万円
- 敷金
- -
- 管理費
- -
- 修繕積立費
- -
- 駐車場
- -
- 借地料
- -
- 敷地面積
- 125.75㎡
- 土地面積計測方式
- 公簿
- 土地権利
- 所有権
- 地目
- 宅地
- 地勢
- 平坦
- セットバック
- -
- 接道1
- 南西側 幅員4.7mの公道に4m接する
- 接道2
- -
- 建物構造
- -
- 築年月
- -
- 専有面積
- -
- 建物面積計測方式
- -
- 延床面積
- -㎡
- バルコニー面積
- -
- 都市計画
- 市街化区域
- 用途地域
- 商業地域
- 建ぺい率
- 80%
- 容積率
- 400%
- 表面利回り
- -
- 現行利回り
- -
- 通学校区
-
伊良林小学校
桜馬場中学校 - 現況
- 更地
- 引渡/入居時期
- 即時
- 取引態様
- -
- 物件公開日
- 2026年3月23日
- 次回更新予定日
- 2026年4月23日
間口4m、奥行き30mの商業地域にある細長い38坪の敷地。
以前は、1階に車庫2台の3階建と奥には2階建の家が2棟建っていました。(右の写真)
この場所は一般住宅と違い高層建物が建てられますので、光を上から遠し中庭を彩る設計が良いですね。因みに7階建まで建てられるみたいです。
発想し楽しむ、そんなイメージが持てる人でないと、この土地の価値を活かすことが出来ません。いや、この敷地に建てた家にあなたのセンスが賞賛されるのかもしれません。
< 近代住宅に住む > 都会的感性を磨く
ビルトイン車庫を設けたコンクリート住宅を建てワインを楽しみながら食事をする。多趣味なあなたは専用ルームで映画を見たり道具を磨いたり、お子さんがピアノの練習をしたり。週末の家族団らんを楽しむひと時。
< 長屋風に住む > 長崎に居ながら京都長屋を味わう
ウナギの寝床の様な地型を活かし、風鈴が似合う風情あるモダン住宅で身体を癒す。
< 2世帯住宅に住む > 親孝行のご夫婦
エレベーターを家の中心に設置したセパレート住宅でお互いのプライベートを保ちながら元気イッパイの子供たちが通いあう。
< 事務所兼自宅に住む > 仕事姿を家族に見せる
パパは家族の笑顔を見ながら仕事ができるし家族はイキイキとしたパパの顔を見ながら生活できる幸せもの。
< アパート経営を行う > 固定収入で生活安定
将来を見据え今の生計と別にアパート経営をやってみてはいかがでしょう?
※ 7階建てのマンション、1DKタイプが12世帯のプランあり。
そんな発想し楽しく造った建物だからこそ、皆さんはきっと羨ましがると思います。是非、雑誌に掲載される様な建物を造って下さい。
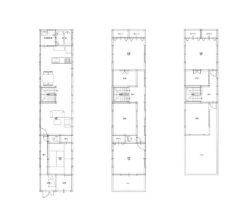
★参考イメージプラン例★ 何れも車庫2台可能です。
Aプラン 181.75㎡(54.97坪)

Bプラン 172.24㎡(52.10坪)

※ イメージプランの為、価格は算出していません。
※ プラン例が気になる方はプラン作成の建築会社をご紹介致しますので各自打合せ願います。
※ 尚、この土地は建築条件なし(建築業者の指定なし)での販売です。
この町の紹介
●長崎のイベント!長崎くんちの踊り町 ●坂本竜馬との所縁?亀山社中への登り口
●日々の買い物は中通り商店街や新大工商店街へ ●バスも電車も使える交通の便の良さ

