売買物件を探す
隠れ家みぃつけた。
物件概要
- 価格
- 2,980万円
- タイプ
- 【売戸建】中古戸建 / 2階建
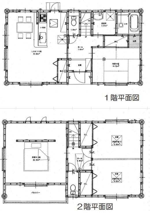
- 間取り
- 4LDK
- 築年数
- 2009/07/02
- 敷地面積
- 126.48㎡
- 所在地
- 長崎県 長崎市 清水町
- 交通
- 長崎電気軌道1系統 岩屋橋 徒歩10分 / バス 西町市場前 徒歩3分
- YouTube
- -
物件詳細
- 建物名(物件名)
- -
- 部屋番号/区画番号
- -
- 価格
- 2,980万円
- 敷金
- -
- 管理費
- -
- 修繕積立費
- -
- 駐車場
- -
- 借地料
- -
- 敷地面積
- 126.48㎡
- 土地面積計測方式
- 公簿
- 土地権利
- 所有権
- 地目
- 宅地
- 地勢
- 平坦
- セットバック
- -
- 接道1
- 西側 幅員に4m接する
- 接道2
- -
- 建物構造
- 木造 地上2階
- 築年月
- 2009/07/02
- 専有面積
- -
- 建物面積計測方式
- 壁芯
- 延床面積
- 103.5㎡
- バルコニー面積
- -
- 都市計画
- 市街化区域
- 用途地域
- 第一種住居地域
- 建ぺい率
- 60%
- 容積率
- 200%
- 表面利回り
- -
- 現行利回り
- -
- 通学校区
-
西町小学校
緑が丘中学校 - 現況
- 賃貸中
- 引渡/入居時期
- 相談
- 取引態様
- 一般
- 物件公開日
- 2026年4月14日
- 次回更新予定日
- 2026年5月14日
清水町の住宅を紹介しまーす![]()
この建物は2009年7月完成のオール電化住宅です。
なぜ隠れ家がというと、
それは道路沿い目立つ家ではなく、道路から少しだけ入った所にひっそりとたたずむ感じ。
だから車の騒音や排気ガスが気になりにくいと思いますよ![]()
では室内をご案内いたします。
オートロック玄関を開けるとまず目に入ったのが、天井の八角形の木枠照明。
いいですねぇ![]()

リビングへ突入![]()
キッチンまわりはPOPなオレンジ色で毎日の家事が楽しくできそうです。
収納は引き出しタイプになっていて開き戸タイプに比べ奥のものが取り出しやすく、スペースを無駄なく使えます。
カウンターには自分好みの観葉植物やハーブを置いてもGood!

和室へ来ました。

個人的には畳部屋があると”ホッ”とします。
ちなみに畳は高湿になると水分を吸収、乾燥すると水分を放出するので”自然の空気清浄器”ってとこです![]()
防犯面・防風面ではシャッター付なのが安心です。
2階へ向かいます。
ん?2階ホールの天井に開口部が・・・?気になりますが、
まずは12帖の洋室へ
大袈裟かもしれませんが、私が幼少の頃に熱狂したプロレスできる程の広いスペースです。
部屋を広く使うために間仕切り壁の裏のスペースは収納名人になるチャンス。
6帖の洋室2部屋の天井は天窓があり、月明かりのシャワーを浴びながら心地良い睡眠がとれるかもしれませんよ![]()
相も変わらずホールの天井が気になりますが、行くのを我慢してトイレへ入ると腰壁は”木”です。
暖かみがあり安心して?用がたせます。
洋室の天窓
温もりあるトイレ
やはり2階ホールの開口部が気になります。
開口部を開くと折りたたみの階段があり登ってみれば小屋裏収納がありました。

このスペースは
物が多かったり
季節ものを収めたり
かくれんぼしたり?反省部屋にしたり![]()
と用途多彩で使い方はあなた次第。
小屋裏収納も気になってはいましたが、1階から2階、そして階段を下りて壁の隅に目をあてると気付きました。
”おっ”室内のコーナー部は角ばってなく”丸み”があるのです。
これにてレポーターのお仕事完了です。
いかがですか?見てみませんか?道路沿いから少し奥に入った感じで隠れ家風で静かです。
お気軽にご連絡下さい。内覧ご希望の際は事前にご連絡いただければ助かります。

