売買物件を探す
【売戸建】中古戸建
(成約) 成約済み
オレンジの夕陽を見るオレンジの家
物件概要
- 価格
- 2,500万円
- タイプ
- 【売戸建】中古戸建 / 2階建
- 間取り
- 4LDK
- 築年数
- 2005/02
- 敷地面積
- 211.85㎡
- 所在地
- 長崎県 長崎市 かき道2丁目
- 交通
- バス(かき道2丁目 徒歩3分)
- YouTube
- -
物件詳細
- 建物名(物件名)
- 非公開
- 部屋番号/区画番号
- 非公開
- 価格
- 2,500万円
- 敷金
- -
- 管理費
- -
- 修繕積立費
- -
- 駐車場
- -
- 借地料
- -
- 敷地面積
- 211.85㎡
- 土地面積計測方式
- 公簿
- 土地権利
- 所有権
- 地目
- 宅地
- 地勢
- 平坦
- セットバック
- -
- 接道1
- 東側 幅員12mの公道に13.2m接する(位置指定道路)
- 接道2
- -
- 建物構造
- 木造 地上2階
- 築年月
- 2005/02
- 専有面積
- -
- 建物面積計測方式
- 壁芯
- 延床面積
- 140.22㎡
- バルコニー面積
- -
- 都市計画
- 市街化区域
- 用途地域
- 第一種低層住居専用地域
- 建ぺい率
- 50%
- 容積率
- 80%
- 表面利回り
- -
- 現行利回り
- -
- 通学校区
-
橘小学校
橘中学校 - 現況
- 賃貸中
- 引渡/入居時期
- 即時
- 取引態様
- 一般
- 物件公開日
- 2026年1月14日
- 次回更新予定日
- 2026年2月14日
かき道2丁目(通称:矢上団地)に中古戸建がでました。
ん?なぜ?かき道?・・・かき?
昔、むかし、むか~しぃ、
矢上大橋あたりは砂浜だそうな。
このあたりでは、カキ(牡蠣)がとれていたそうな。
で、かき道と名付けられたそうな。
矢上大橋あたりは砂浜だそうな。
このあたりでは、カキ(牡蠣)がとれていたそうな。
で、かき道と名付けられたそうな。
かき道2~5丁目は矢上団地内、橘小学校・橘中学校があり、東長崎の名の付く団地で学校区があるのは、矢上団地だけではないでしょうか?
この家は、平成17年2月完成の建物です。
外観は鮮やかなオレンジ色でさわやかです
外観は鮮やかなオレンジ色でさわやかです
中古住宅を購入する際に建物が古いとあれこれ交換して結局リフォーム代がかかってしまう事もありますね。この周辺の戸建取引事例をみても昭和61年~平成3年あたりが多く取引されているみたいですが、平成17年完成を勘案すればリフォームする必要が少ないと思われます。
駐車場は2台と思いきや3台目も駐車可能


なので、来客、お子さんが遊びに来ても大丈夫です。
いやいや、それ以前に駐車場が3台停められる物件はなかなかないと思いますよ。
いやいや、それ以前に駐車場が3台停められる物件はなかなかないと思いますよ。
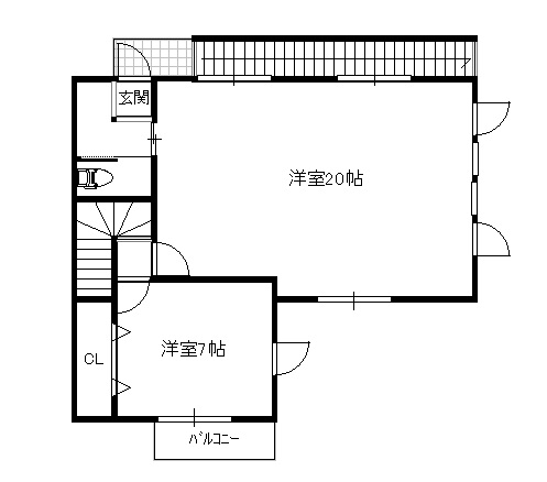
それと、この家の2階の洋室は20帖あります。
そこで、突然ですが教えてください。
この2階の間取(下の間取)をあなたならどう使うか m(__)m
この2階の間取(下の間取)をあなたならどう使うか m(__)m
この2階には1階から上れる内階段と外から入れる外階段があります。
私なら1階2階と独立して使えますので〇〇教室なんて良いかも?
また間取を仕切って収納する部屋、トレーニングルームや趣味の部屋、子供の成長や人数に合わせて間仕切る。
思い切ってホームパーティをする! etc・・・
また間取を仕切って収納する部屋、トレーニングルームや趣味の部屋、子供の成長や人数に合わせて間仕切る。
思い切ってホームパーティをする! etc・・・
考えてくると楽しくなってきました
デッキスペースからは夏の花火が見え、
片手に”た~まやーっ!”と声掛けてみては?
ご近所迷惑には十分気を付けてください(笑)
ご近所迷惑には十分気を付けてください(笑)
また海が近いので休日に釣りを楽しむのも良いですね
余談ですが
花火大会で、打ち上がった花火を見て「玉屋(たまや)」や「鍵屋(かぎや)」などと掛け声をかけたりしますが、その「玉屋」や「鍵屋」というのは、実在した花火師の屋号のこと。
花火大会で、打ち上がった花火を見て「玉屋(たまや)」や「鍵屋(かぎや)」などと掛け声をかけたりしますが、その「玉屋」や「鍵屋」というのは、実在した花火師の屋号のこと。
現在、居住中ではありますが、内覧もできますのでお気軽にご連絡下さい。
ソーラー発電が屋根にあります。
現在おおよそ月に1万~1.5万円(九州電力より買い取りの収入)があります。
現在おおよそ月に1万~1.5万円(九州電力より買い取りの収入)があります。
*九州電力の買い取り価格は後1年ほどで変更となります。


![484626_252073768246458_48173132_n[1]](http://www.pea.co.jp/wp-content/uploads/2014/01/484626_252073768246458_48173132_n1-66x100.jpg)