売買物件を探す
【売戸建】中古戸建
(成約) 成約済み
とにかく広い、支店長クラスの家!?
物件概要
- 価格
- 1,100万円
- タイプ
- 【売戸建】中古戸建 / 2階建
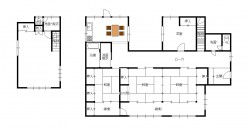
- 間取り
- 5DK
- 築年数
- 1981/02
- 敷地面積
- 478.00㎡
- 所在地
- 長崎県 島原市 下折橋町
- 交通
- 島原鉄道 農高前 徒歩5分
- YouTube
- -
物件詳細
- 建物名(物件名)
- -
- 部屋番号/区画番号
- -
- 価格
- 1,100万円
- 敷金
- -
- 管理費
- -
- 修繕積立費
- -
- 駐車場
- -
- 借地料
- -
- 敷地面積
- 478.00㎡
- 土地面積計測方式
- 公簿
- 土地権利
- 所有権
- 地目
- 雑種地
- 地勢
- 平坦
- セットバック
- -
- 接道1
- 南側 幅員の公道に接する
- 接道2
- 南西側 幅員の公道に接する
- 建物構造
- 木造 地上2階
- 築年月
- 1981/02
- 専有面積
- -
- 建物面積計測方式
- 壁芯
- 延床面積
- 185.31㎡
- バルコニー面積
- -
- 都市計画
- 市街化区域
- 用途地域
- 第一種低層住居専用地域
- 建ぺい率
- 50%
- 容積率
- 80%
- 表面利回り
- -
- 現行利回り
- -
- 通学校区
-
第二小学校
第一中学校 - 現況
- 居住中
- 引渡/入居時期
- 即時
- 取引態様
- 専任
- 物件公開日
- 2026年4月4日
- 次回更新予定日
- 2026年5月4日
島原市の下折橋町にある中古住宅です。
以前この住宅は社宅として利用されていました。
転勤で来られる支店長様や次長様が単身赴任でお住まいになっていたそうです。
今は4年程使われず空家になっていて、今後は使う予定が無いという事で今回売却する運びとなりました。
ただ、長年空家にしていたのでリフォームが必要な箇所はありますので、
一緒に内覧しながら、お客様のコンセプトに合わせ打合せしていきたいと思います![]()
★広い縁
こんなに広い縁だとポカポカ日向ぼっこしながら、読書なんて気持ち良いです。
★広い廊下
廊下が広いんです。2人で並んで歩ける広さ!車いすの方でもゆったり通れます。
★広い本間造り
昔ながらの本間造りの住宅。とにかく部屋が広い!お風呂場からトイレまで広く全く狭さを感じません。広いお風呂で一日の疲れを洗い流したいものです。
★広い庭
大きな庭石、柿の木に栗の木、青々した芝生がとてもキレイだったそうです。
以前この広い庭でパターゴルフも楽しんでいたそうです。
島原市本社の日本に誇る企業の社宅だっただけに、基礎・柱・梁はしっかりしています。
ここがしっかりしていれば後はリフォームでピカピカ綺麗なりますよ。
是非一度ご内覧下さい。




