売買物件を探す
【売戸建】中古戸建
(成約) 成約済み
住吉商店街近くの坂の家
物件概要
- 価格
- 650万円
- タイプ
- 【売戸建】中古戸建 / 1階建
- 間取り
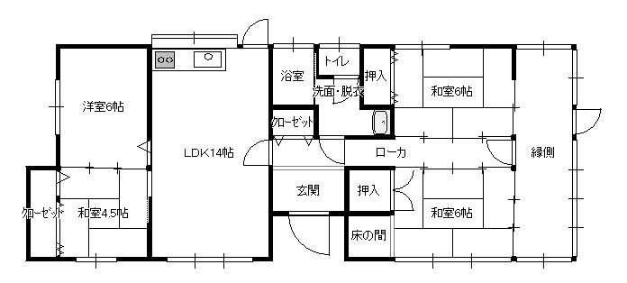
- 4LDK
- 築年数
- 1966/12
- 敷地面積
- 228.09㎡
- 所在地
- 長崎県 長崎市 住吉町
- 交通
- 長崎電気軌道1系統 住吉 徒歩4分
- YouTube
- -
物件詳細
- 建物名(物件名)
- -
- 部屋番号/区画番号
- -
- 価格
- 650万円
- 敷金
- -
- 管理費
- -
- 修繕積立費
- -
- 駐車場
- 近隣/10,000円
- 借地料
- -
- 敷地面積
- 228.09㎡
- 土地面積計測方式
- 公簿
- 土地権利
- 所有権
- 地目
- 宅地
- 地勢
- 高台
- セットバック
- -
- 接道1
- 北側 幅員のに接する
- 接道2
- -
- 建物構造
- 木造 地上1階
- 築年月
- 1966/12
- 専有面積
- -
- 建物面積計測方式
- 壁芯
- 延床面積
- 81.88㎡
- バルコニー面積
- -
- 都市計画
- 市街化区域
- 用途地域
- 第一種低層住居専用地域
- 建ぺい率
- 60%
- 容積率
- 200%
- 表面利回り
- -
- 現行利回り
- -
- 通学校区
-
西浦上小学校
西浦上中学校 - 現況
- 更地
- 引渡/入居時期
- 即時
- 取引態様
- 一般
- 物件公開日
- 2026年2月13日
- 次回更新予定日
- 2026年3月13日
住吉商店街から歩いて約5分
築年数は経っているもののしっかりと手入れの行き届いた建物。

昔ながらの本間作りの住宅なので普段目にする部屋よりもきっと広く感じられます。
床の間付きの和室は陽当りの良い部屋でお客様を迎えるにはぴったりの部屋。
この和室と繋がる縁側は平成元年に増築されたもので最高の眺め。
住吉町方面の眺めを楽しむ事が出来ますし、夜になると夜景が最高です。
松枝から上がる花火もここから楽しむ事が出来るので友人を呼んでビール片手にバーベキューパーティーなんて良いかも。

ただしこの住宅の唯一の難点が住吉商店街方面から登っても、住吉台町から下って来ても階段が避けられない事。
住吉方面からだとこの坂と階段を登らなけれななりません。
売主様はご高齢ですが毎日登っていると苦も無く登れるとの事
「継続は力なり」

しかしそれでも坂や階段が気になる人は住吉台バス停から下る事をお勧めします。
バス停や月極駐車場から徒歩1分以内で辿り付ける場所なので車を利用する方はそんなに苦にならないと思います。
是非一度この解放感、利便性をご体感下さい。
