売買物件を探す
(成約) 成約済み
社会人に与えられる特権
物件概要
- 価格
- 7,000万円
- タイプ
- 種別不明 / 5階建
- 間取り
- -
- 築年数
- 1999/3
- 敷地面積
- 246.94㎡
- 所在地
- 長崎県 西彼杵郡長与町 高田郷
- 交通
- バス(百合野 徒歩2分)
- YouTube
- -
物件詳細
- 建物名(物件名)
- 非公開
- 部屋番号/区画番号
- 非公開
- 価格
- 7,000万円
- 敷金
- -
- 管理費
- -
- 修繕積立費
- -
- 駐車場
- -
- 借地料
- -
- 敷地面積
- 246.94㎡
- 土地面積計測方式
- 公簿
- 土地権利
- 所有権
- 地目
- 宅地
- 地勢
- 平坦
- セットバック
- -
- 接道1
- -
- 接道2
- -
- 建物構造
- RC 地上5階
- 築年月
- 1999/3
- 専有面積
- -
- 建物面積計測方式
- 壁芯
- 延床面積
- 539.37㎡
- バルコニー面積
- -
- 都市計画
- 市街化区域
- 用途地域
- 第一種住居地域
- 建ぺい率
- 60%
- 容積率
- 200%
- 表面利回り
- -
- 現行利回り
- -
- 通学校区
-
高田小学校
高田中学校 - 現況
- 賃貸中
- 引渡/入居時期
- 即時
- 取引態様
- 一般
- 物件公開日
- 2026年1月14日
- 次回更新予定日
- 2026年2月12日
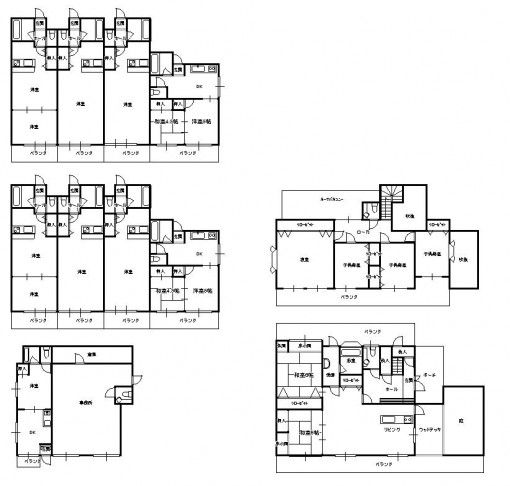
この収益物件は社会人の方に人気のある賃貸マンションで、
間取りは1ルーム・1DK・2K・6LDKと様々なタイプの部屋があります。
学生さんなら8帖のワンルームで十分でしょうが、社会人なら少し贅沢に広い部屋に住みたいですよね。
このマンションのおススメポイントは、1ルームでも12帖程の広々空間になっており、大きなベッドに大型のテレビ、更にはソファーを置いてもゆったりとした居住空間が取れるのが嬉しいです。しかも全室駐車場付きのマンション。
社会人には必須の駐車場が全世帯に付いているのは希少です。
確かに立地は最高に便利な場所とは言えませんが、普段、車に乗っている人にとっては駐車場から部屋までどれだけ近いかが問題です。自分でもびっくりですが僕なんか5件隣のコンビニまで車で行ってしまった事があるくらい(笑)
気になる6LDKは、4階5階を使ったメゾネットタイプの贅沢な1世帯。
そこにはウッドデッキと広いベランダに植物を植えており、まるで一戸建てに住んでいる感覚を思わせる庭です。
お隣の人と窓越しに目が合う事もない最上階のお部屋で戸建のようなゆとりある間取り。
設計士が細部までこだわって考え抜いて造ったこのマンションは、思わず感嘆の声をあげてしまいそう。
マンション経営にご興味のある方には「一見の価値あり」の物件です!
