売買物件を探す
【売マンション】中古マンション
(成約) 成約済みリフォーム済・お得な物件
ビバシティ金屋町
物件概要
- 価格
- 2,690万円
- タイプ
- 【売マンション】中古マンション / 12階建
- 間取り
- 1SLDK
- 築年数
- 2007/7
- 専有面積
- 72.04㎡
- 所在地
- 長崎県 長崎市 金屋町
- 交通
- 長崎電気軌道1系統 五島町 徒歩3分 / 長崎バス/県営バス 五島町 徒歩3分
- YouTube
- -
物件詳細
- 建物名(物件名)
- ビバシティ金屋町
- 部屋番号/区画番号
- 801
- 価格
- 2,690万円
- 敷金
- -
- 管理費
- 8,700円/月
- 修繕積立費
- 5,100円/月
- 駐車場
- 18,000円/要確認
- 借地料
- -
- 敷地面積
- 493.77㎡
- 土地面積計測方式
- 公簿
- 土地権利
- -
- 地目
- 宅地
- 地勢
- -
- セットバック
- -
- 接道1
- 北西側 幅員6mの公道に接する
- 接道2
- 北東側 幅員5.8mの公道に接する
- 建物構造
- RC 地上12階
- 築年月
- 2007/7
- 専有面積
- 72.04㎡
- 建物面積計測方式
- 壁芯
- 延床面積
- -㎡
- バルコニー面積
- 11.26㎡
- 都市計画
- 市街化区域
- 用途地域
- 商業地域
- 建ぺい率
- 80%
- 容積率
- 500%
- 表面利回り
- -
- 現行利回り
- -
- 通学校区
-
桜町小学校
長崎中学校 - 現況
- 古屋あり
- 引渡/入居時期
- 即時
- 取引態様
- 専任
- 物件公開日
- 2026年3月4日
- 次回更新予定日
- 2026年4月4日
贅沢立地といわれる金屋町。
長崎駅や大波止までも徒歩圏内、車いらずの生活ができます。
場所はもちろんのこと、内装にもこだわりがたくさんあります♪
リビングへ入るとパッと広がるフローリングのぬくもり。
天然無垢のチーク材を使用しており、見た目のデザインはもちろん耐久・耐水性などにも優れています。
![]() |
![]() |
お部屋の明るさはリビング横に位置するバルコニーからの自然光。
キッチンと横並びにダイニングを配置すると、二面採光になり更に明るい空間に。
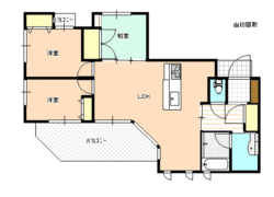
気になるお部屋の間取りは1SLDK。
文字だけで見ると、狭いように感じるかもしれませんがもともとの間取りは3LDK。
売主様により、間取り変更をされたのです。
![]() |
![]() |
間取り変更後、LDKからつながる和室には琉球畳を使用し、かわいらしいテイストに。
だけどプライベートも欲しい!そんなときは和室に設置しているロールカーテンで仕切ることができます。
更には、WICを作り収納をプラス。可動式棚もあるため、パントリーとして使っても◎
建物の設備はというと、オートロックシステムで安心。
お仕事などでお忙しい方にもぴったりな宅配ボックスもあります(^_^)
そして希少なペット可マンション!
家族の一員である、ペットと一緒に暮らすことができる嬉しいポイントですね!
車いらずの好立地で、老後の暮らしもきっと安心できるマンション。
ぜひ一度ご覧ください(^^)/
■周辺施設(パンフレット掲載)
「JR長崎駅」まで540m
「アミュプラザ長崎」まで490m
「夢彩都」まで620m
「浜の町アーケード」まで730m
「桜町小学校」まで550m
「長崎中学校」まで1400m
「県立図書館」まで820m



