売買物件を探す
【売地】売地
リフォーム済・お得な物件便利な立地・快適な環境(新築・眺望・畑)
駐車場収入年間576,000円でローンを返済!
物件概要
- 価格
- 2,700万円
- タイプ
- 【売地】売地 / -
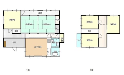
- 間取り
- 6LDK
- 築年数
- 1976/2
- 敷地面積
- 585.10㎡
- 所在地
- 長崎県 長崎市 界一丁目
- 交通
- バス(八坂神社前)
- YouTube
- -
物件詳細
- 建物名(物件名)
- 非公開
- 部屋番号/区画番号
- 非公開
- 価格
- 2,700万円
- 敷金
- -
- 管理費
- -
- 修繕積立費
- -
- 駐車場
- 空有
- 借地料
- -
- 敷地面積
- 585.10㎡
- 土地面積計測方式
- 公簿
- 土地権利
- 所有権
- 地目
- 宅地
- 地勢
- 平坦
- セットバック
- -
- 接道1
- 北側 幅員7mの公道に23m接する(位置指定道路)
- 接道2
- -
- 建物構造
- 木造
- 築年月
- 1976/2
- 専有面積
- 157.22㎡
- 建物面積計測方式
- 壁芯
- 延床面積
- -㎡
- バルコニー面積
- -
- 都市計画
- 市街化区域
- 用途地域
- 第一種中高層住居専用地域
- 建ぺい率
- 60%
- 容積率
- 200%
- 表面利回り
- -
- 現行利回り
- -
- 通学校区
-
日見小学校
日見中学校 - 現況
- 空家
- 引渡/入居時期
- 相談
- 取引態様
- 一般
- 物件公開日
- 2026年1月10日
- 次回更新予定日
- 2026年1月28日
長崎市東部にある界町。
小学校や中学校も町内にあるため子育てには最適な町ですね!
物件まで進んでいくと広い駐車場が見えてきます。
こちらはなんと…月極駐車場です。
売主様がオーナーとして賃貸中で年間収入576,000円!!!
駐車場として46年間ほぼ満車というのも強み!
月々のローン支払いに当ててみるのはいかがでしょうか?
例えば35年ローンにて購入した場合
→年間駐車場収入576,000円×35年=20,160,000円
約半分は収入にて返済ができます!嬉しいですね♪
駐車場部分を除いても、敷地は十分な広さがあります。
二世帯住宅にも最適ですね(*^_^*)
ご自身用の駐車場スペースも3台は確保できますよ!
リフォーム、リノベーションして自分好みに変えてもよし
土地として新築を建ててもよし
広々敷地のため使い方を選べます!
ぜひ一度現地を一緒にみていただきたいです★
■周辺施設(Googleマップより計測)
「日見小学校」まで徒歩550m
「日見中学校」まで徒歩750m
「長崎ペンギン水族館」まで徒歩750m
「エレナ日見店」まで徒歩700m
「ファミリーマート長崎日見店」まで徒歩600m
■お支払例(購入時諸経費別途)
借入額2,900万円、金利1.2%、35年払い
月々・・・・84,593円
※購入時の諸経費やリフォーム代金も含めて住宅ローン可