売買物件を探す
【売地】売地
(成約) 成約済み
狭小地を活かしたプランを楽しむ
物件概要
- 価格
- 370万円
- タイプ
- 【売地】売地 / 2階建
- 間取り
- -
- 築年数
- 1971/7
- 敷地面積
- 65.07㎡
- 所在地
- 長崎県 長崎市 西町
- 交通
- バス(西町集会場 徒歩2分)
- YouTube
- -
物件詳細
- 建物名(物件名)
- 非公開
- 部屋番号/区画番号
- 非公開
- 価格
- 370万円
- 敷金
- -
- 管理費
- -
- 修繕積立費
- -
- 駐車場
- 無
- 借地料
- -
- 敷地面積
- 65.07㎡
- 土地面積計測方式
- 公簿
- 土地権利
- 所有権
- 地目
- 宅地
- 地勢
- 低地
- セットバック
- -
- 接道1
- 西側 幅員の公道に接する(位置指定道路)
- 接道2
- -
- 建物構造
- 木造 地上2階
- 築年月
- 1971/7
- 専有面積
- -
- 建物面積計測方式
- 壁芯
- 延床面積
- 71.66㎡
- バルコニー面積
- -
- 都市計画
- 市街化区域
- 用途地域
- 第二種中高層住居専用地域
- 建ぺい率
- 60%
- 容積率
- 200%
- 表面利回り
- -
- 現行利回り
- -
- 通学校区
-
西町小学校
緑が丘中学校 - 現況
- 空家
- 引渡/入居時期
- 即時
- 取引態様
- 専任
- 物件公開日
- 2025年12月28日
- 次回更新予定日
- 2026年1月28日
この土地ズバリ狭小地!
しかも道路下の宅地。
良い所が見つからないと思われた方、実はそうでもないのです![]()
今は車庫なしですが、
建築する際に1階を車庫、
2階以上を住宅、
そして1階車庫の下(道路下)を倉庫や多目的ルームにする。
陽当りは西側道路に面し、南側は川なので陽射しを遮るものがなく十分明るさを確保できます。
きっとデザイン設計会社が見ると興奮する土地かも知れません。
個性を活かした家造り、TVに出てくる様な家造り。
なんて変哲もない土地にただ住宅プランをするよりも、
こんな狭小地に家造りの醍醐味を感じることが出来る人は間違いなく一生満足できる家となるでしょう![]()
私もどんな人が購入し家造りをするのかが楽しみです![]()
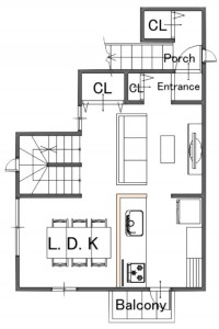
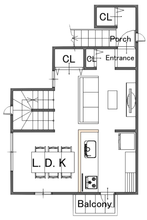
【 参考新築プラン 1980万円(税別)】イーデザインホーム(株)
![]() |
![]() |
![]() |
| 1階 28.98㎡ |
2階 34.78㎡ |
3階(小屋裏) 16.56㎡ |
■周辺施設(Googleマップより計測)
西町小学校500m 徒歩7分
緑が丘中学校1.3km 徒歩17分
長崎大学1.3km 徒歩17分 車6分
長崎ビッグNスタジアム1.8km 車7分




